Logo von Geno immobilien GmbH

Geschmackvolles 1-2-Familienhaus mit Wintergarten und Gartenidylle

32584 Löhne

Objekt-Nr.:HM-09939

590.000 €

Kaufpreis

Objektdaten

Preise

Kaufpreis

590.000 €

Kaufpreis pro m²

1.966,67 €

Käuferprovision

3,57 %

Informationen

verfügbar ab

01.09.2026

Provisionspflichtig

Flächen

Wohnfläche

ca. 300 

Zimmer

10

Grundstücksfläche

ca. 1.261 

Zustand und Bauart

Baujahr

1934

Zustand

gepflegt

Bauweise

Massiv

Dachform

Krüppelwalmdach

Unterkellert

Ja

Räume, Flure und Etagen

Etagen

1

Balkone

1

Terrassen

1

Stellplätze

Stellplatz

7

Beschreibung

Dieses charmante Zweifamilienhaus vereint den klassischen Charakter aus dem Baujahr 1934 mit einer durchdachten Erweiterung und zahlreichen Modernisierungen. Mit einer Wohnfläche von ca. 300 m² Wohnfläche verteilt auf 10 Zimmer bietet die Immobilie großzügigen Platz für Familien, Mehrgenerationenwohnen oder Wohnen und Arbeiten unter einem Dach.

Ausstattung

Individuelle Ausstattungsmerkmale: - Kelleraußeneingang - Gartenteich Das Haus wurde 1988 erweitert und im Jahr 2000 mit einer gedämmten Klinkerfassade und neuen Fenstern versehen, wodurch eine zeitlose Optik mit energetischem Mehrwert geschaffen wurde. Besonders hervorzuheben sind die neuwertige Sauna mit Infrarotlicht sowie der gemauerte Kamin im Wohnzimmer, die für zusätzlichen Komfort und ein behagliches Wohngefühl sorgen. Ein Wintergarten mit Fußbodenheizung, eine Terrasse und ein Balkon mit elektrischer Markise eröffnen vielfältige Möglichkeiten, das Wohnen nach draußen zu erweitern. Das weitläufige Grundstück überzeugt mit verschiedenen Bereichen - von Grillpavillon bis hin zum Rückzugsort am idyllischen Gartenteich. Auch eine Teilung des Grundstück für einen separaten Bauplatz ist möglich.

Lage

Die Immobilie befindet sich in einer ruhigen Sackgasse und in einer zugleich gut angebundenen Wohnlage von Löhne-Mennighüffen. Einkaufsmöglichkeiten, Schulen, Kindergärten sowie Ärzte und weitere Einrichtungen des täglichen Bedarfs sind in wenigen Minuten erreichbar.

32584 Löhne

Die Karte dient lediglich als Orientierungshilfe und stellt nicht die exakte Lage dar. Die vollständige Adresse erhalten Sie bei uns.

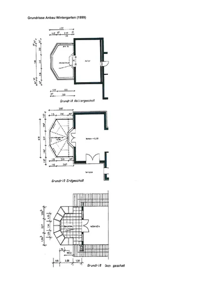
Grundrisse

Energieausweis

Energiedaten

Energieausweistyp

Bedarf

Gültig bis

2035-11-18

Ausstellungsdatum

19.11.2025

Energieeffizienzklasse

E

Baujahr

1937 Anbau 2000

Wesentlicher Energieträger

Gas

Befeuerungsart

Gas

Heizungsart

Zentralheizung

Energieeffizienz

A+

A

B

C

D

E

F

G

H

0

30

50

75

100

130

160

200

250

Endenergiebedarf

138 kWh/(m²a)